இந்த மாடல் வீடினை பாருங்கள்.-
மாற்றும் ஒரு மாடல்-
அதற்கான டிசைன் கீழே-
5,000 க்கும் மேற்பட்ட மாட்ல் வீடுகளில் கடுகளவு செம்பிள் வீடுகளே இங்கு பதிவிட்டுள்ளேன். இதனை பதிவிறக்கி ஒவ்வொரு டிசைனாக பாருங்கள். உங்களுக்கு எந்த டிசைன் பிடித்துள்ளதோ அதனை குறிததுகொண்டு அதற்கான பிளானையும் பாருங்கள்.கட்டடகலை வல்லுநர்களுக்கு இது கிடைதற்கரிய டிசைன்கள் இது. வீட்டுக்குரிய உள் அலங்காரங்கள் (Interiors Design)பற்றிய பதிவை பின்னர் பதிவிடுகின்றேன்.அதுவரை இந்த டிசைன்களை பயன்படுத்திப்பாருங்கள். கருத்துக்களை கூறுங்கள்.
வாழ்க வளமுடன்.
வேலன்.
பி.டி.எப்.கோப்பாக நீங்கள் பதிவிறக்க இங்கு கிளிக் செய்யுங்கள்











36 comments:
வழக்கம் போல அசத்திட்டிங்க வேலன் சார்
வேலன் சார் பிரமாதம்..
ரொம்ப சந்தோசமாக உள்ளது சார் பதிவுலகில் உங்களைப்போன்ற நண்பர்கள் கிடைத்ததற்கு பெருமையாக உள்ளது...
உங்களின் இந்த முயற்சி இடைவிடாது தொடர வேண்டும் சார்...
உங்களுக்கு ஒரு பெரிய சல்யூட் சார்...
நன்றி
முக்கியமாக எனக்கு மிகவும் பயனுள்ளதாக இருக்கும் நான் இப்போது வீடு கட்டும் முயற்சியில் உள்ளேன் நிச்சயமாக என்னைப்போனற பலருக்கும் இது பயன்படும் சார்... உங்கள் பதிவுகளிலேயே இதுவும் ஒரு மாஸ்டர் பதிவாக இருக்கும்....
Good one. :-)
உங்கள் வாசகர்களில் பலர் நடுத்தர வர்க்கம் என்பதை நினைவில் கொள்ள வேண்டுகிறேன். வீட்டுக்கான பிளான்கள் நன்றாக இருக்கலாம். ஆனால் இந்த மாதிரி வீடுகள் கட்ட இடம் வாங்க கற்பனையாவது பண்ண முடியுமா? சிறிய வீடுகளுக்கான பிளான்களை அல்லது ஃப்ளாட்களுக்கான மாதிரிகளை பதிவிடுங்கள்.
என்ன சார் புதுசா வீடு கட்டுற ஐடியாவில இருக்கீங்களா
நன்றி சார்!
நான் BE அமைப்பியல் துறை படிக்கிறேன். இந்த பதிப்பு மிகவும் பயனுள்ளது.
அற்புதமான பதிவு வேலன் அண்ணா, போன வருடம் வீடு கட்டும் போது இது மாதிரி டிசைனுக்காக தேடி அலைந்தேன். அப்போது கிடைக்கவில்லை. இனி வீடு கட்டுபவர்களுக்கும், கட்டி கொண்டு இருப்பவர்களுக்கும் மிக உபயோகமான பதிவு இது.அசத்தலான பதிவிற்கு நன்றி அண்ணா.
வேலன்சார்,மிகவும் நல்ல பதிவுசார்.
வாழ்த்துக்கள்...
thanks a lot sir
ஷபாஷ்
ஷபாஷ் வேலன்னா
ஷபாஷ் வேலன்னா
இதனால் அனைவருக்கும் அறிவிப்பது என்னவென்றால் தினமும் வேலன் கடைக்கு வாருங்கள் எல்லா நல்ல விஷயங்களும் கிடைக்கும்..
வாருங்கள்...அறிவை வளர்த்துகொள்ளுங்கள்
என்றும் அனபுடன்
முஹம்மது நியாஜ்
Please let me know how to use this.
For example what is the connectivity between 1.jpg, al_001.jpg, bl_0001.jpg, cl, dl, gg, gl, hh, hl, P, pl.
கலக்கல்!
PalaniWorld கூறியது...
வழக்கம் போல அசத்திட்டிங்க வேலன் சார்//
நன்றி பழனி சார்..தங்கள் வருகைக்கும் கருத்துக்கும் ந்ன்றி
வாழ்க வளமுடன்.
வேலன்.
மாணவன் கூறியது...
வேலன் சார் பிரமாதம்..
ரொம்ப சந்தோசமாக உள்ளது சார் பதிவுலகில் உங்களைப்போன்ற நண்பர்கள் கிடைத்ததற்கு பெருமையாக உள்ளது...
உங்களின் இந்த முயற்சி இடைவிடாது தொடர வேண்டும் சார்...
உங்களுக்கு ஒரு பெரிய சல்யூட் சார்...
நன்றி//
நன்றி சிம்பு சார்..தங்கள் வருகைக்கம் வாழ்த்துக்கும ்நன்றி...
வாழ்க வளமுடன்.
வேலன்.
மாணவன் கூறியது...
முக்கியமாக எனக்கு மிகவும் பயனுள்ளதாக இருக்கும் நான் இப்போது வீடு கட்டும் முயற்சியில் உள்ளேன் நிச்சயமாக என்னைப்போனற பலருக்கும் இது பயன்படும் சார்... உங்கள் பதிவுகளிலேயே இதுவும் ஒரு மாஸ்டர் பதிவாக இருக்கும்ஃ
இதன் அடுத்த தொடர்ச்சியாக இன்டிரீயர் டிசைன்கள் உள்ளது. விரைவில் அதனையும் பதிவிடுகின்றேன். தங்கள் வ்ருகைக்கு நன்றி...
வாழ்க வளமுடன்.
வேலன்.
Chitra கூறியது...
Good one. :-)ஃஃ
நன்றி சகோதரி...
தங்கள வருகைக்கும் கருத்துக்கும் நன்றி..
வாழ்க வளமுடன்.
வேலன்.
thiruthiru கூறியது...
உங்கள் வாசகர்களில் பலர் நடுத்தர வர்க்கம் என்பதை நினைவில் கொள்ள வேண்டுகிறேன். வீட்டுக்கான பிளான்கள் நன்றாக இருக்கலாம். ஆனால் இந்த மாதிரி வீடுகள் கட்ட இடம் வாங்க கற்பனையாவது பண்ண முடியுமா? சிறிய வீடுகளுக்கான பிளான்களை அல்லது ஃப்ளாட்களுக்கான மாதிரிகளை பதிவிடுங்கள்.//
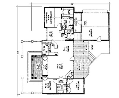
இந்த மாடல்வீடுகளில் முன்புற டிசைன்மட்டும் நாம் தேவையானதை தேர்வு செய்துகொள்ளலாம்.இந்த மாடல் வீடுகளை பார்வையிடும் சமயம் நமக்கே ஒரு ஐடியா கிடைக்கும். படத்தில் உள்ளவாறு வீடு கட்டுவதானால் அவ்வளவுதான்.தங்கள் வருகைக்கும் கருததுககும் ந்ன்றி
வாழ்க வளமுடன்.
வேலன்.
சசிகுமார் கூறியது...
என்ன சார் புதுசா வீடு கட்டுற ஐடியாவில இருக்கீங்களாஃஃ
அட அந்தஅளவிற்கு வசதி இல்லை சசி...நம்ப பிளாக்கருக்கு பயன்படட்டுமே என்று பதிவிடுகின்றேன்.
தஙகள் வருகைக்கும் கருத்துக்கும் நன்றி..
வாழ்க வளமுடன்.
வேலன்.
சரவணன்.D கூறியது...
நன்றி சார்!
நான் BE அமைப்பியல் துறை படிக்கிறேன். இந்த பதிப்பு மிகவும் பயனுள்ளது//
நன்றி சரவணணன். உங்களுக்கு கல்வி சம்பந்தமான வேறு ஏதாவது தேவையென்றாலும் தெரியபடுத்துங்கள் தங்களுக்கு தருகின்றேன்.வாழ்கவளமுடன்.
வேலன்.
afrine கூறியது...
அற்புதமான பதிவு வேலன் அண்ணா, போன வருடம் வீடு கட்டும் போது இது மாதிரி டிசைனுக்காக தேடி அலைந்தேன். அப்போது கிடைக்கவில்லை. இனி வீடு கட்டுபவர்களுக்கும், கட்டி கொண்டு இருப்பவர்களுக்கும் மிக உபயோகமான பதிவு இது.அசத்தலான பதிவிற்கு நன்றி அண்ணா//
நன்றி சகோதரி..தங்கள் வருகைக்கும கருத்துக்கும் வாழ்ததுக்கும் நன்றி..
வாழ்க வளமுடன்.
வேலன்.
மச்சவல்லவன் கூறியது...
வேலன்சார்,மிகவும் நல்ல பதிவுசார்.
வாழ்த்துக்கள்.
நன்றி மச்சவல்லவன் சார்...
வாழ்க வளமுடன்.
வேலன்.
gansha கூறியது...
thanks a lot sirஃஃ
நன்றி கணேசன் சார்...
வாழ்க வளமுடன்.
வேலன்.
முஹம்மது நியாஜ் கூறியது...
இதனால் அனைவருக்கும் அறிவிப்பது என்னவென்றால் தினமும் வேலன் கடைக்கு வாருங்கள் எல்லா நல்ல விஷயங்களும் கிடைக்கும்..
வாருங்கள்...அறிவை வளர்த்துகொள்ளுங்கள்
என்றும் அனபுடன்
முஹம்மது நியாஜ்ஃஃ
நன்றி சார்..இப்போதெல்லாம் 700 பேர் கடைக்கு வந்து செல்கின்றார்கள். எல்லாம ்தங்கள்போன்றோரின ஆசிர்வாதம் தான்.தங்கள் வருகைக்கும் கருத்துக்கும் வாழ்ததுக்கும் நன்றி...
வாழ்க வளமுடன்.
வேலன்.
Gunasekar Arumugam கூறியது...
Please let me know how to use this.
For example what is the connectivity between 1.jpg, al_001.jpg, bl_0001.jpg, cl, dl, gg, gl, hh, hl, P, pl.ஃ
ஒவ்வொரு படத்திற்கும் உண்டான படங்களும் இணைக்கப்பட்டுள்ளது. ஒவ்வொன்றாக பாருங்கள் தெளிவாக புரியும். தங்கள் வருகைக்கு்ம் கருத்துக்கும் ந்னறி..
வாழ்க வளமுடன்.
வேலன்.
velji கூறியது...
கலக்கல்ஃஃ
நன்றி நண்பரே...தங்கள் வருகைக்கும் கரு்த்துக்கும் நன்றி...
வாழக் வளமுடன்.
வேலன்.
THIRUKKAZHUKKUNDRAM PATRI ARIYA THAGAVALGAL VENDUM
UNGALAI INDRU GIRIVALA PADHAIYIL THIRUMALAI SOKKAMMAN KOIL ARUGIL PARTHEN NAMADHU OORIN PERUMAI PATRI VIRIVAGA ULAGAMAKKALUKKU SOLLA VENDUM -OM NAMASIVAYA
V.Selvaraj PC கூறியது...
THIRUKKAZHUKKUNDRAM PATRI ARIYA THAGAVALGAL VENDUM//
V.Selvaraj PC கூறியது...
UNGALAI INDRU GIRIVALA PADHAIYIL THIRUMALAI SOKKAMMAN KOIL ARUGIL PARTHEN NAMADHU OORIN PERUMAI PATRI VIRIVAGA ULAGAMAKKALUKKU SOLLA VENDUM -OM NAMASIVAYA//
தாங்கள் வந்து என்னிடம் பேசியிரு்ககலாமே..ஏன் தயக்கம்.பல தகவல்கள் உங்களிடமிருந்தும் பெற்றிருப்பேனே...நண்பரே..வந்து சந்தியுங்கள் காத்திருக்கின்றேன்..
வாழ்க வளமுடன்.
வேலன்.
Mr.Velan Can You contact me ??
MR.Raja - 88254 79234 - BUILDERS LINE TAMIL CONSTRUCTION MAGAZINE
all of here just copied
dont copy others
உங்களின் இந்தப் பதிவு வலைச்சரத்தில் அறிமுகப்படுத்தப்பட்டுள்ளது. நேரம் கிடைக்கும்போது பார்வை இடவும்.
http://blogintamil.blogspot.in/2014/03/blog-post.html
ஜயா 2செண்டு விடு கட்ட தேவையான பணம் எவ்வளவு மாடல் வீடு 2செண்டு உள்ள மாதிரி
Post a Comment